■料金表
| 研修室名 | 施設使用料 半日 | 暖房使用料 半日 | 時間外 施設使用料 1H | 時間外 暖房使用料 1H |
| 第1教室 | 1,600円 | 800円 | 1,100円 | 550円 |
| 第2教室 | 1,600円 | 800円 | 1,100円 | 550円 |
| 第3教室 | 1,600円 | 800円 | 1,100円 | 550円 |
| 第4教室 | 1,600円 | 800円 | 1,100円 | 550円 |
| 第5教室 | 1,600円 | 800円 | 1,100円 | 550円 |
| 第7教室 | 800円 | 400円 | 600円 | 400円 |
| 実習場 | 3,200円 | 1,600円 | 2,200円 | 1,100円 |
| 会長室 講師控室 | 800円 | 400円 | 600円 | 300円 |
| 駐車場 グラウンド | 4,800円 | - | 3,200円 | - |
利用料金:9:00~13:00までで半日料金。残り13:00~17:00までで半日料金となります。なお、
9:00~17:00まで1日利用する場合は、半日の料金×2の料金となります。
準備料金:準備のために9:00~17:00まで利用される場合、施設使用料金額は半額になります。
その他:備品を利用されたい場合は、内訳表を添えて申請をお願いします。
第1研修室と第2研修室は、現在1つの教室として広く準備されています。
研修参加者の駐車スペースとして使用する場合の駐車場利用料は、施設使用料に含まれて
おります。一方、駐車場を催し物会場等として使用する場合は、上記使用料表に定める使
用料を別途徴収いたします。
■申込方法
1.[ダウンロード/提出]メニュー → [申込書等のダウンロード]→[■施設使用関係]→
[奥州市技能訓練センター]より様式をダウンロード
2.お電話(TEL.0197-23-3388)にて、日程の空き状況をご確認ください。
3.「施設関係使用許可申請書」について、次のいずれかの方法でご提出ください。
(1)FAX(0197-23-3389)で送信
(2)メールで送信
(3)【申込書/実態確認書等提出】より送信
(4)窓口に持参あるいは、郵送
■利用可能日と利用時間
●利用可能日:土・日曜日、国民の祝日、夏季・冬期休暇、ほか当センターが指定する日を除く日
●利用時間:9時から17時まで
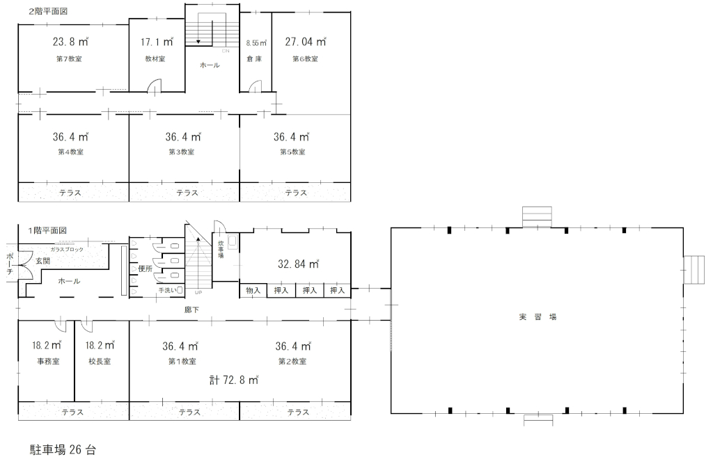
■施設内平面図

■注意事項
・指定場所以外での飲食・火気の使用はご遠慮ください。
・アルコール類を伴う飲食はご遠慮ください。
・屋内での喫煙はできませんが、屋外に喫煙所がございます。
・貴重品等はご自身で管理するようにお願いします。また、持込物品の盗難・紛失については責
任を負いかねます。
・利用中に施設・設備の汚損・毀損があった場合は、主催者に相当額を弁償いただきます。
・使用許可書発行後に利用内容の変更により使用料の不足がある時は、当日までにお支払い下さ
い。
なお、使用許可書発行後にキャンセルされた場合は、使用料を全額お支払いいただきます。